豊川市の外構・エクステリアデザイン|カズマデザイン

富士特殊紙業株式会社様の事業所内託児所

ご縁があって、愛知県瀬戸市暁町にあります、富士特殊紙業株式会社様が開設された事業所内託児施設「あかつきキッズランド」の外構設計デザイン&施工をやらせて頂きました。

まだまだ、事業所内託児施設は珍しいようで、日本政府が進める企業主導型保育事業の実現に向けて事業所内保育所を開設されたという事で、開園式には内閣総理大臣の安倍晋三さんをはじめ、そうそうたる顔ぶれの国会議員の方からの祝電が読み上げられておりました。

待機児童の解消や、多くの女性が仕事と子育ての両立を目指すことができるように従業員のみならず暁工業団地協議会の会員企業、更に瀬戸市民の皆様も利用できるように地域枠も設けてあるとの事です。

富士特殊紙業株式会社様は、今後もますます注目されていく企業様だと思います。

富士特殊紙業株式会社 公式ホームページ

富士特殊紙業株式会社様の社屋。 美しいですね。

さて、それでは外構工事の模様を、施工前からの様子もあわせてご紹介させて頂きます。

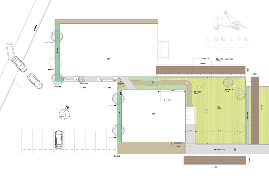
今回、工事をさせて頂いたこの場所は、もともと富士特殊紙業株式会社様の土地ではなく、公道を挟んで斜向かえの、他の企業さんの使用されていた土地をご購入されて、これからリフォームをしていく所です。施工前は、かなり鬱蒼とした状態になっておりました。

施工前(Before)の写真をご覧の通り、工場のある敷地内に託児施設の園庭を設けます。

設計にあたり特に気をつけた事があります。

(1)子供の安全を守るため、子供が間違って工場の方へ行けないようにする。

(2)美観のため、工場の方の景色が園庭側から見えにくくする。

(3)子供の身体と心に優しい外構を心がける。(裸足で走り回れる広い芝生スペースと美しい植栽)

そこで、約2mの高さのフェンスで園庭を囲み、芝生スペースを広くとりました。

正面門扉周辺

正面門扉

アプローチ

アプローチの両サイドは植栽スペース
いずれ焦茶の部分がなくなるほどに、緑の絨毯が広がっていきます。

園庭側から

目地砂を撒いてある為、写真ではわかりずらいですが、全面に芝生をはってあります。目地砂は自然と下に沈んで行き、夏には青々とした緑の絨毯になっています。
防災用に非常扉を設置しました。

園庭の樹木

【イロハモミジ】(左下は、リュウキュウアセビ) イロハモミジは樹高5〜10mになる中高木で、落葉樹です。紅葉が美しいですよ。
【シマトネリコ】 樹高5〜8mになる中高木で、常緑樹です。鑑賞木として高い人気があります。
【ジューンベリー】 樹高5mになる中高木で、落葉樹です。名前の通り6月(ジューン)に赤い実がついて可愛いです。
【ハイノキ】樹高3〜5mになる中高木で、常緑樹です。山野の別荘地のような庭空間を演出します。
【カツラ】樹高10mになる中高木で、落葉樹です。ハート形の葉は、秋に黄色に色づきます。
【ソヨゴ】樹高5〜10mになる中高木で、常緑樹です。濃い緑色に映える赤い実が可愛いです。

南西側の植栽

採用させて頂いた樹木は、フェイジョア、ピンクユキヤナギ、オリーブ、トキワマンサク、アオダモ、常緑ヤマボウシ、シバザクラ、ヤマコウバシ。あとは、コルジリネと下草もりだくだんです。

託児所たてもの

開園式の様子

2017年4月3日

約2ヶ月半ぶりに様子を見に行きました。

植栽や芝生がずいぶんと青々としておりました。植栽を外構に取り入れると、こういった美の変化も楽しめます♪

2017年11月11日(土)テレビにて、この事業所内託児所の事が紹介されていました! ↓

上部へスクロール